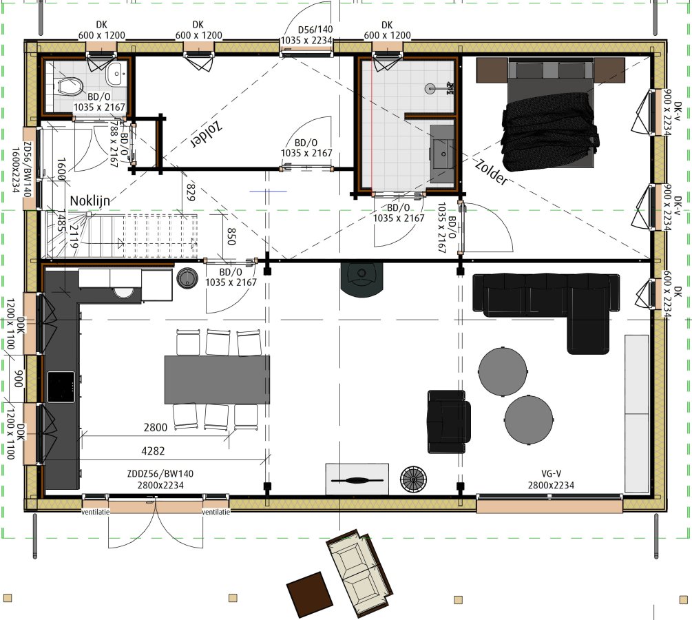
Deze logwoning is opgetrokken uit massieve logs van 68mm A-klasse vurenhout, geïsoleerd met natuurlijke houtvezelplaatisolatie en is bekleed met een buitenbekleding van Thermowood.
Massieve wanddikte: 68 mm logs + wandisolatie + binnenbekleding
Breedte x lengte: 8500 x 11750 mm
Nokhoogte: ca. 5887 mm
Bebouwd oppervlak (excl. overstek): ca.110 m²
Inhoud: ca. 530 m³
OPENINGSTIJDEN
We zijn op afspraak geopend tijdens kantooruren. In weekenden en op feestdagen zijn we gesloten.
Op Hemelvaartsdag 14 mei en vrijdag 15 mei zijn we gesloten.
JANSEN BLOKHUIZEN B.V.
Warmseweg 6
7075 EP ETTEN Gld.
T. 0314 324 197
info@jansenblokhuizen.nl
Wij zijn aangesloten bij BouwGarant

© Jansen Blokhuizen | Disclaimer | Privacybeleid | Vindbaar & webdesign: Koax Online