Door het toepassen van massieve logs van 88mm en een extra dik isolatiepakket van natuurlijke houtvezelplaatisolatie voor zowel de buitenwanden als de dakconstructie is bij deze logwoning een 2x zo hoge isolatiewaarde bereikt dan voorgeschreven in het Bouwbesluit. De woning wordt volledig electrisch verwarmd, ook de vloerverwarming.
Projectnummer: WO021.20
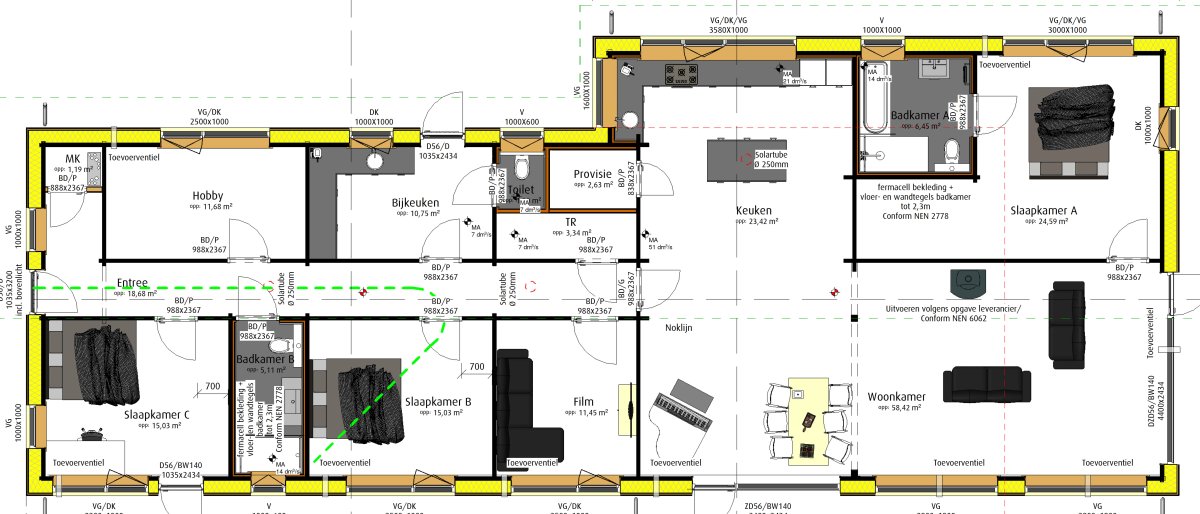
Wandopbouw: 88 mm logs + wandisolatie + Red Cedar-buitenbekleding
Breedte x lengte: ca. 10510 x 26410 mm
Nokhoogte: ca. 3983 mm
Bebouwd oppervlak (excl. overstek): 250 m²
Inhoud: ca. 932 m³
OPENINGSTIJDEN
We zijn op afspraak geopend tijdens kantooruren. In weekenden en op feestdagen zijn we gesloten.
Op Hemelvaartsdag 14 mei en vrijdag 15 mei zijn we gesloten.
JANSEN BLOKHUIZEN B.V.
Warmseweg 6
7075 EP ETTEN Gld.
T. 0314 324 197
info@jansenblokhuizen.nl
Wij zijn aangesloten bij BouwGarant

© Jansen Blokhuizen | Disclaimer | Privacybeleid | Vindbaar & webdesign: Koax Online